7
$899,900 Sale
Listed 1 day
123 MAPLE STREET Street
· 4
· 3.5
· 6
· 2332
Key Facts
Key facts for 123 MAPLE STREET Street
Property Type
House, House
Parking
Garage: Yes, 6 parking
MLS #
40777746
Size
2332 sqft
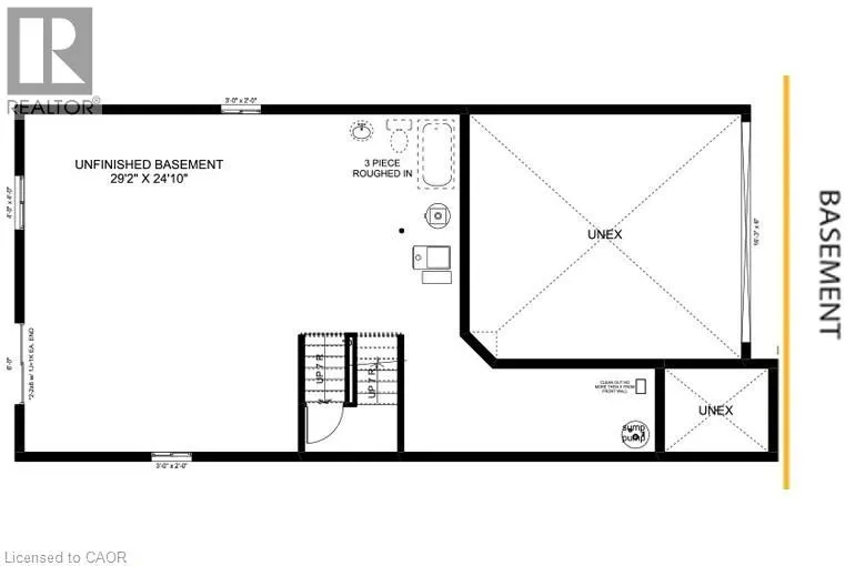
Basement
Unfinished, Full (Unfinished)
Listed on
-
Lot size
-
Tax
-
Days on Market
-
Year Built
-
Maintenance Fee
-
Description
Step into the Fraser Model, an epitome of modern living nestled in Drayton Phase 2 community. Boasting 2,332 sq ft of living space, this residence offers four spacious bedrooms and three and a half luxurious bathrooms. The 2 car garage provides ample space for your vehicles and storage needs. Notewo...rthy is the unfinished basement, ripe for your creative touch, and situated on a walkout lot, seamlessly merging indoor and outdoor living. Experience the epitome of craftsmanship and innovation with the Fraser Model and make your mark in the vibrant Drayton community 9’ Main Floor Ceilings, 6’ Patio Slider Door, Laminate floors on main level excluding mudrooms and washrooms. (id:10452)
Similar Properties (No results)
Room Types
2pc Bathroom
-
Dimensions 5'4'' x 5'4''
28.44 sqft
3pc Bathroom
-
Dimensions 9'2'' x 5'0''
45.83 sqft
Bedroom
-
Dimensions 12'6'' x 12'10''
160.42 sqft
Listing courtesy of: RE/MAX REAL ESTATE CENTRE INC. BROKERAGE-3
This REALTOR.ca listing content is owned and licensed by REALTOR® members of The Canadian Real Estate Association.