37
$539,900 Sale
Listed 5 hours ago
39 ALLENBY Avenue
· 4
· 2.0
· 2
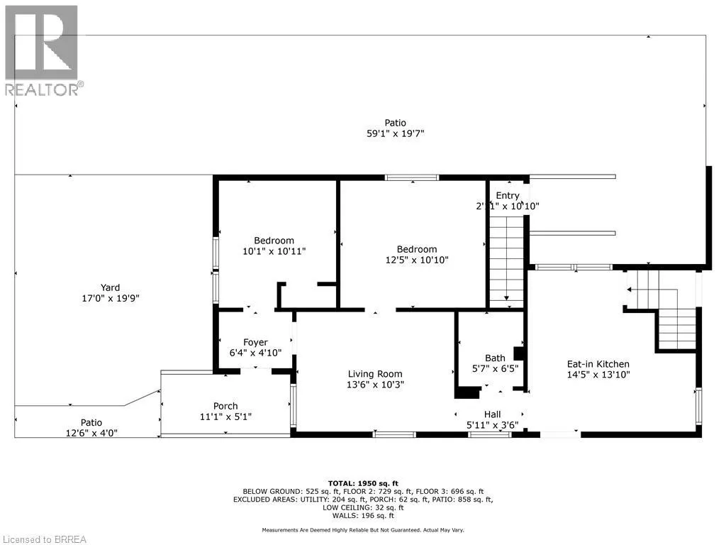
· 1620
Key Facts
Key facts for 39 ALLENBY Avenue
Property Type
Apartment, Duplex
Parking
Garage: No, 2 parking
MLS #
40781237
Size
1620 sqft
Basement
Partially finished, Full (Partially finished)
Listed on
-
Lot size
-
Tax
-
Days on Market
-
Year Built
-
Maintenance Fee
-
Description
Welcome home to 39 Allenby Ave., Brantford. VACANT Up/Down duplex in pristine condition. Two bedroom upper and two bed + den (basement) main level unit with separate entrances. Separately metered-- gas, hydro and water meters. Two 100 amp hydro services, one high efficiency forced air gas furnace, 2... power vented gas water heaters are owned. Recent updates include shingles (2018), windows (2015-2020), driveway repaved (2025), new flooring throughout main floor, rec room, and upstairs kitchen (2025). Freshly painted throughout, very clean and shows A+++! With both units being vacant, set your own rents or move in immediately and rent the other unit. Pride of ownership is very apparent throughout, just turn the key move in and enjoy! (id:10452)
Similar Properties (No results)
Listing courtesy of: Re/Max Twin City Realty Inc
This REALTOR.ca listing content is owned and licensed by REALTOR® members of The Canadian Real Estate Association.