28
$564,900 Sale
Listed 17 hours ago
105, 251 Spruce Street
· 0
· 0.0
· 0
· 3332
Key Facts
Key facts for 105, 251 Spruce Street
Property Type
Commercial, Commercial Mix
Parking
Garage: No, 0 parking
MLS #
A2265646
Size
3332 sqft
Basement
-
Listed on
-
Lot size
-
Tax
-
Days on Market
-
Year Built
2015
Maintenance Fee
$482/mo
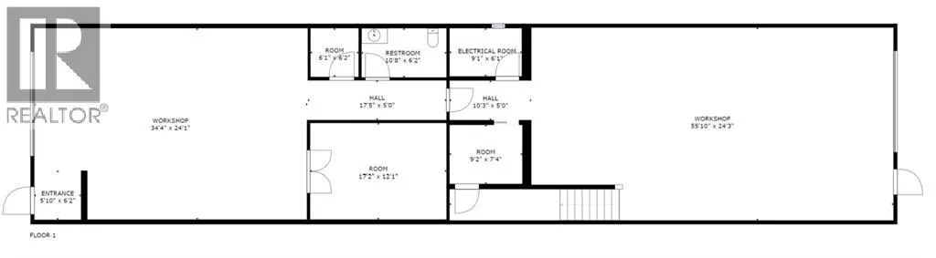
Description
(See 360 VIRTUAL TOUR) Ideal south side location in Piper Creek Industrial park, just south of the Westerner grounds/Centrium. This building was constructed in 2015 and shows near new, with a 2751 sq. ft. footprint (Condo plan measurement) and 3332 total developed space (Interior measurements) inc...luding mezzanine with exterior fenced storage compound. This incredible space has both a front drive 14 ft. overhead door and a rear drive 14 ft. overhead door with two separate bays and office space in the centre. The possibilities are endless, as the front could be used as a show room or additional shop space, or could be sub-let to a tenant. Also ideal deal for the hobbyist or business owner that desires some extra space for a man cave. Both the front and back shop/showroom spaces have overhead radiant heat, front bay is 24'x 34', rear bay is 24'x55'. The office mezzanine has force air. The upper mezzanine consists of two offices, a bathroom and a kitchen room. The lower central space below the mezzanine has another large room ideal for show room/reception or office space, plus two additional rooms that could be used for storage or small office and another bathroom. Front bay flooring has been left bare concrete as the new owner may decide they want carpet for a showroom, epoxy, paint, or leave as is, The front parking area is paved as well as the rear access and parking. Space must bee seen to be appreciated, see 360 Virtual tour and flor plan(in photos). Current lease expires March 15, 2026, tenant may wish to renew if desired by purchaser. Condo fee is $482 per month. (id:10452)
Similar Properties (No results)
Listing courtesy of: RCR - Royal Carpet Realty Ltd.
This REALTOR.ca listing content is owned and licensed by REALTOR® members of The Canadian Real Estate Association.